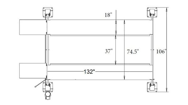
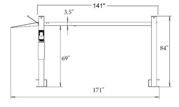
Triumph 8,000 LB Short Classic Lift – NSS-8 CLASSIC
✓ Includes jack stand or wheel chocks —no extra purchase required. (Contact for more details)
✓ No Sales Tax Outside NY
✓ Free Pickup from US Warehouse
✓ Talk to a Lift Specialist - (866) 412-1837
✓ Military Discount for Veterans
✓ Want a Better Price? Pay by Wire - Click here to Request a Discount
Want today's Triumph prices but not ready for delivery?
No problem! All orders receive special attention and in most cases we can hold items and begin processing at a later date! Please contact us for more details!

